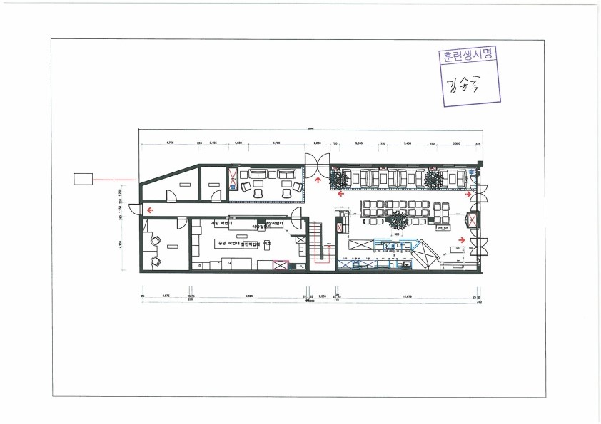
실내 설계 도서 작성 _ ISO


Severity: Notice
Message: Undefined index: chunho
Filename: controllers/Portfolio.php
Line Number: 416
Backtrace:
File: /home/himedia.co.kr/www/himedia/application/controllers/Portfolio.php
Line: 416
Function: _error_handler
File: /home/himedia.co.kr/www/himedia/index.php
Line: 330
Function: require_once


